Kent House and the Kindergarten Cottage
To mark the opening of the refurbished Kent House Cottage, we look back at the history of the site as well as the buildings at MLC School that have been called Kent House.
1886 – The first MLC School ‘Kent House’
The building on the corner of Rowley Street and Park Road that housed Miss Lester’s School was called Kent House. This building was purchased by the Wesleyan Church in 1885 to become the Wesleyan Ladies’ College (now MLC School). This is the first of three buildings at MLC School to have the name Kent House.
In 1926 Kent House was renovated and wrapped to complete the facade from Potts Hall to Schofield Wing and renamed Prescott Wing. (This corner was lost in 1977 fire.)

1949 – ‘Youngarra’, Our second ‘Kent House’
n August 1949, ‘Youngarra’, a two-storey house, on the corner of Rowley and Gordon Streets, was purchased by MLC School. Youngarra was described as ‘a handsome two-storey house with ornamented timbered gables, a wrap-around bullnose verandah and a wrought iron balcony’.
The building was renamed Kent House (the second ‘Kent House’), in memory of Miss Lester’s original school, and was occupied by the kindergarten and lower primary school. (The upper primary school was located in Abbeythorpe, now the site of the gymnasium within the Aquatic Centre.)
This second Kent House was demolished in 1965 to be replaced by a new and larger building (also called Kent House, the third building at MLC School to have this name). The new 1966 Kent House contained nine classrooms, an assembly hall and library and allowed for the primary and infants departments to finally be located together.

Expansion of the Kent House Junior School
1980
In 1980 the large house at 8 Rowley Street (on the corner of Mt Pleasant Avenue) was purchased by MLC School and put to use as the primary library.
Not long after, it was demolished to make way for a new building that connected the two existing sections of Kent House and provided a new, modern library as well as an art room and classroom. The complex was opened by the treasurer of the School Council, Mr W. G. Budge, in 1981.
The north west part of the land where the original house at 8 Rowley Street stood was used the playground/open space.

1988
In 1988 the house at 3 Gordon Street was purchased and was briefly used as a pre-school centre. It was demolished and the land was firstly used as a playground, when the site was the Junior School, and now houses a workshop and gardens.
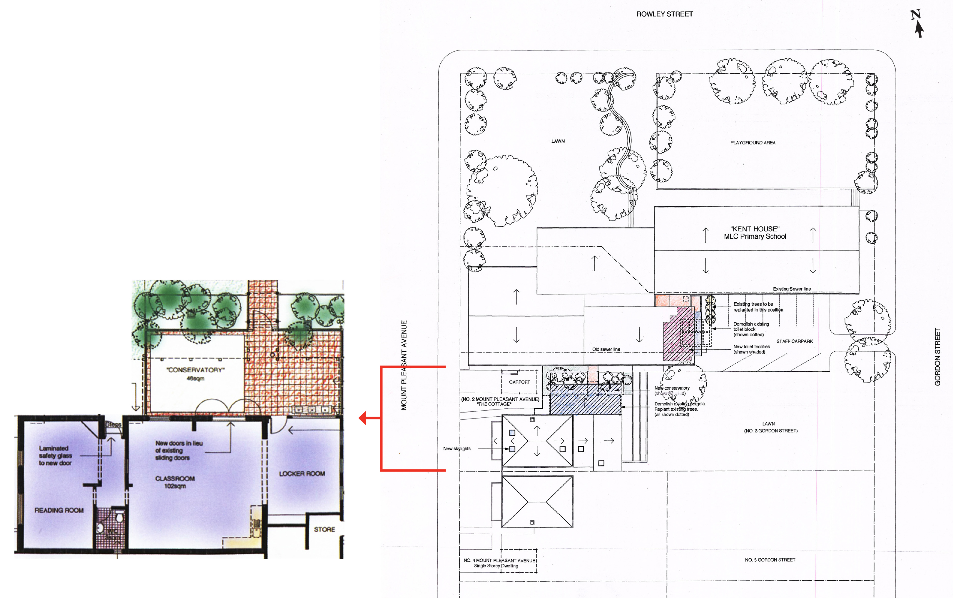
1994 – The Kindergarten Cottage
In late 1994 the cottage at 2 Mt Pleasant Ave was purchased for use as the Kindergarten Cottage.
In 2001, the cottage was remodelled and a ‘conservatory’ added, creating a new home for the two Kindergarten classes in their very own ‘house’. The Cottage provided a variety of learning spaces for the girls that moved away than the more traditional chairs and tables lined up in one room. The interior walls were able to be removed while keeping the original architectural features and the feel of a real cottage
In Lucis 2001, Issue 2, the Head of Kent House, Ms Porter, said: “This open plan arrangement will enable the two class teachers and their teacher’s aid, to work either with their own class, or when appropriate, divide the students for ability or social grouping activities.”
The front space in the Cottage, which included a fireplace, was used for quiet or small group activities. The middle section housed tables and a broad array of resources and the rear section was for the storage of the girl’s bags and belongings in their own ‘cubby’ lockers.
A significant addition was the extension and enclosure of the existing verandah to make an indoor/outdoor room, similar to a garden conservatory with French doors. This provided another ‘light-filled’, ‘flow through’ space for work that involves water and paint.

The New Junior School on Park Road opens and Kent House becomes the Art and Design Centre
Kent House was used as the MLC Junior School until the end of 2008 and was then put to use as the MLC School Art and Design Centre.
